花重リノベーション
設計|MARU。architecture
第51回東京建築賞|リノベーション賞・一般部門一類 最優秀賞

東側ファサード。店舗部分は明治期の建物。







- 東側ファサード。店舗部分は明治期の建物。
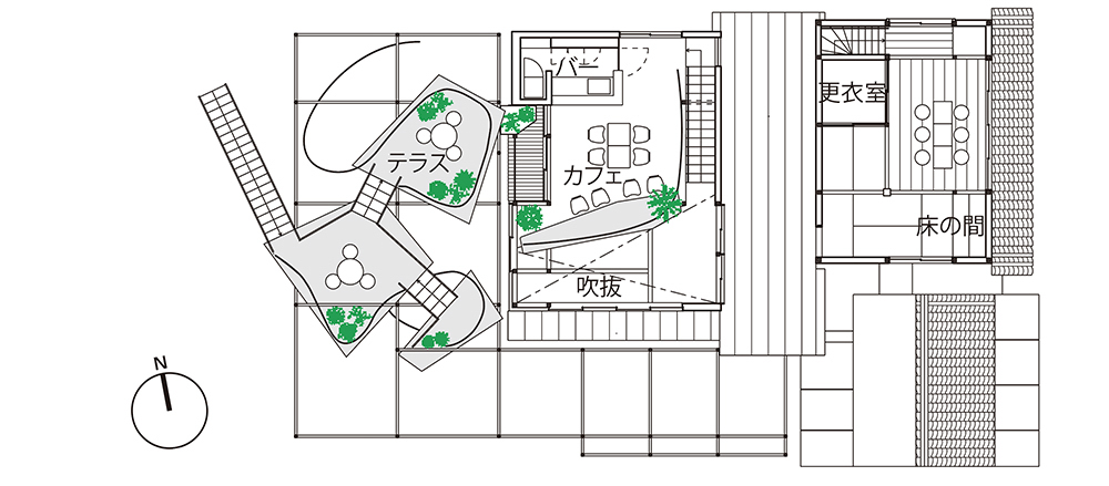
- 敷地西奥に新設された鉄骨無垢材のフレームで宙に浮くテラス。
- 西側より俯瞰する。
- 花屋店舗内部。左奥にカフェ。
- 2階平面図
- 1階平面図
- 断面図
建築主:
株式会社山陽エージェンシー
表彰建築士
事務所:
事務所:
有限会社マル・アーキテクチャ一級建築士事務所
施工:
株式会社ヤマムラ、株式会社雄建工業、有限会社紀陽工作所、株式会社ビーファクトリー、アゴラ造園株式会社
所在地:
東京都台東区谷中7丁目5-27
主要用途:
花屋、カフェ
構造:
W造(既存部)、S造(新設部)
階数:
地上2階、一部地下1階
敷地面積:
329.58㎡
建築面積:
134.97㎡
延床面積:
193.11㎡
竣工:
2023年5月
撮影:
関 拓弥
設計趣旨:
谷中霊園の入口にある登録有形文化財の老舗「花重」の改修計画である。度重なる増築で建物が密集していた敷地内を間引き、敷地の奥は庭として谷中のまちに開いた場をつくった。保存にあたっては、ある時代に巻き戻して保存するのではなく、将来にも変化し続けることを受け止めることによって、生きたまま建築が保存される状態をつくることができるのではないかと考えた。それぞれの建物は時代ごとに異なる架構を持っているが、音楽の拍のように繰り返される寸尺の架構のリズムを、建物群に通底する時代を経ても変わらない「律」と捉え、それぞれの建物の架構を現しとして空間をつなぎ、既存の架構を連続させるようにして新たな架構を庭へと伸ばした。
新設フレームは、かつての伝統的な木造架構が技術の粋を集めてつくられたように、現代の技術を駆使した極めて精度の高い機械加工による鉄骨の継ぎ手を用いて実現することとした。
新たに加えるエレメントは全体を横断するように配置することで、新旧や屋内外、人と植物を連鎖的につなぐことを考えた。骨格としての「律」が空間のベースにあることで、エレメントやアクティビティが変化していくことを受容し、変化し続ける生きた建築となることを目指した。(高野 洋平、森田 祥子)

高野 洋平(たかの・ようへい)
MARU。architecture
1979年 愛知県生まれ/2003年 千葉大学大学院修了/2003〜13年 佐藤総合計画/2013年〜 MARU。architecture共同主宰/2013〜16年 千葉大学大学院工学研究科博士後期課程 博士(工学) /現在、千葉大学大学院准教授、高知工科大学客員教授、京都大学非常勤講師
MARU。architecture
1979年 愛知県生まれ/2003年 千葉大学大学院修了/2003〜13年 佐藤総合計画/2013年〜 MARU。architecture共同主宰/2013〜16年 千葉大学大学院工学研究科博士後期課程 博士(工学) /現在、千葉大学大学院准教授、高知工科大学客員教授、京都大学非常勤講師

森田 祥子(もりた・さちこ)
MARU。architecture
1982年 茨城県生まれ/2008年 早稲田大学大学院修了/2010〜13年 NASCA/2010年 MARU。architecture設立/2011〜14年 東京大学大学院特任研究員/2013年〜 MARU。architecture共同主宰/現在、早稲田大学非常勤講師、日本大学非常勤講師
MARU。architecture
1982年 茨城県生まれ/2008年 早稲田大学大学院修了/2010〜13年 NASCA/2010年 MARU。architecture設立/2011〜14年 東京大学大学院特任研究員/2013年〜 MARU。architecture共同主宰/現在、早稲田大学非常勤講師、日本大学非常勤講師
選考評:
審査はまず設計者の事務所から始まった。事務所は、上野にある通りに面した古家。道に面したシャッターを全開し、そのまま事務所として使っている。クライアントは事務所の前を通りかかりこの仕事を依頼して来たという。プロジェクトは事務所から歩いて僅か数分のところ、この距離感がこのプロジェクトを成功させた大きな要因のひとつであろう。このプロジェクトは登録有形文化財に指定された花重を保存しながら、地域の人が立ち寄れるカフェとして再生したもの。敷地の奥半分の建屋を壊し、庭として再生しつつスチールのフレームを増築している。フレームは、将来的に変化し続けるものとして存在するために、無垢のスチールを精緻な継ぎ手によってボルトで接合してできている。果たしてそこまでお金をかける必要があったのだろうかと思ってしまうほど、精密機械の精度で出来上がっている。恐らくその緊張感が、古家の持つ歴史に共鳴し、このプロジェクトの魅力を高めている。フレームにはテラスが設えられ、外部でお茶を楽しむのに適した影を提供している。歴史を刻んだ古家と精緻なフレームと緑が相まってこのプロジェクトの価値を高めている。古家は、ジャッキアップして基礎から丁寧に再生され、未来へと繋がるものになっている。実はこのプロジェクトでより手間暇がかかっているのは、増築部より古家の方であろう。そこにかけられた時間がこの建築の価値として積み上げられ魅力となっているのを感じた。(手塚 由比)

手塚 由比(てづか・ゆい)
建築家、株式会社手塚建築研究所代表取締役
1969年 神奈川県出身/1992年 武蔵工業大学卒業/1992-1993年 ロンドン大学バートレット校(ロン・ヘロンに師事)/1994年 手塚建築企画を手塚貴晴と共同設立(手塚建築研究所に改称,1997年)/1999年〜 東洋大学非常勤講師/2001年〜 東海大学非常勤講師/2006年 カリフォルニア大学バークレー校客員教授/2023年〜 東京大学非常勤講師
建築家、株式会社手塚建築研究所代表取締役
1969年 神奈川県出身/1992年 武蔵工業大学卒業/1992-1993年 ロンドン大学バートレット校(ロン・ヘロンに師事)/1994年 手塚建築企画を手塚貴晴と共同設立(手塚建築研究所に改称,1997年)/1999年〜 東洋大学非常勤講師/2001年〜 東海大学非常勤講師/2006年 カリフォルニア大学バークレー校客員教授/2023年〜 東京大学非常勤講師








